

Oakley
The Orchards - 5756 Hawthorn Common SW
Price includes home, lot & GST.
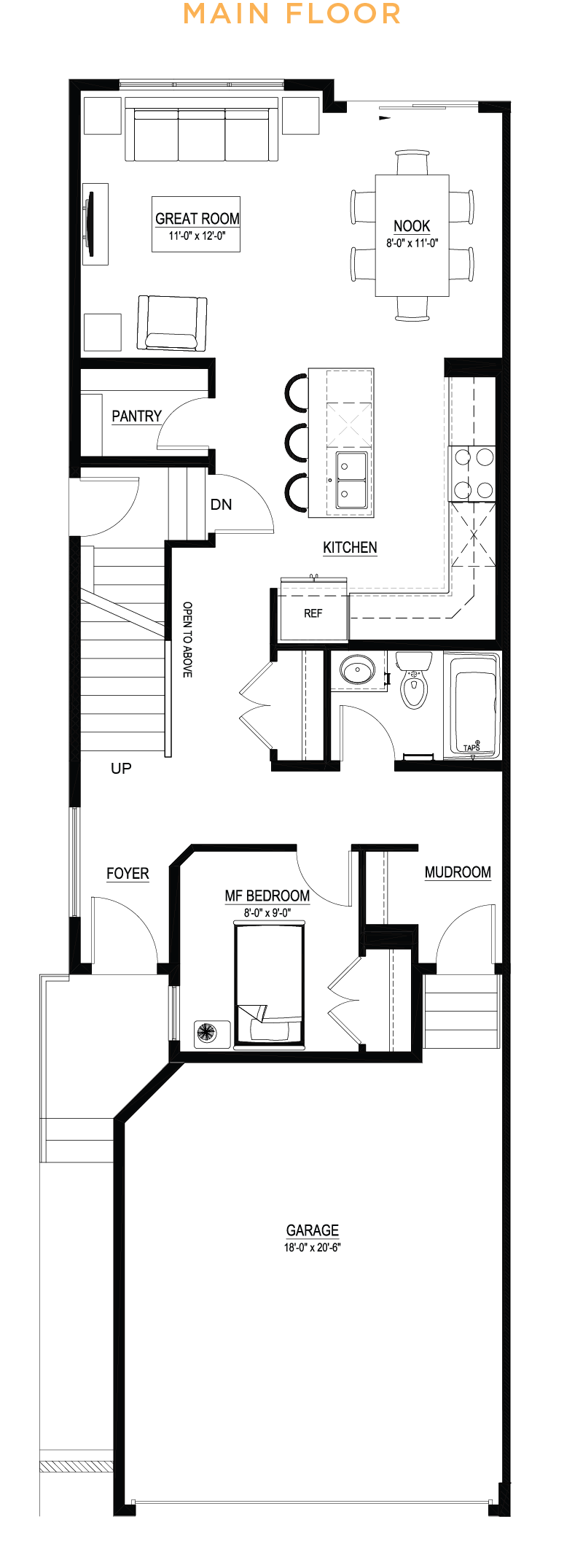
Spacious and versatile, the Oakley is the perfect home for entertaining and hosting friends and family. Entering through the front door, you’re greeted by a main floor flex room that can serve as a playroom or be converted into a main floor bedroom, paired with a full bath for added convenience. Further into the home, the Level 1 kitchen boasts crown moulding, plenty of countertop and storage space, and opens to the bright nook and great room—ideal for gatherings. Upstairs, this thoughtfully designed layout features a central bonus room that separates the spacious primary suite from two additional bedrooms. The primary suite features an upgraded shower in place of the tub/shower combo and dual sinks for added luxury. Completing the second floor are an additional bathroom and a convenient laundry room. This home also includes a gasline for your BBQ, an exterior side entry to the basement, and thoughtful design touches that make it as functional as it is stylish. For even more flexibility, the Oakley includes an exterior side entrance, ideal for developing a future legal suite or additional living space as your family grows.
*Quick possession completion dates are subject to change without notice.
Standard Features
- 9’ main floor ceiling
- All finished ceilings are knockdown
- Thermally-fused laminate (TFL) cabinets throughout
- Luxury vinyl plank (LVP) flooring and carpet throughout
- Modern appliance package
- Water line added to refrigerator
- 1¼” quartz countertops in kitchen, main bath and ensuite
- Up to 40” full width mirrors over every vanity
- One-piece fibreglass tub-shower with ceramic tile installed
- Wifi video doorbell to front door
- Low voltage package
- Fibreglass paint-grade exterior doors
- Delta wrap to basement exterior concrete walls
- Broom-finished concrete driveway
- 3-piece basement bath rough-in
- Full front and rear landscaping
- See Area Manager for full list of standard specifications
Additional Features
- Level 1 kitchen
- Main floor bedroom
- Full bath on main floor
- Upgrade tubshower to shower in ensuite
- Dual sinks to ensuite
- Gasline to BBQ
- Exterior side entry to basement
Built Green Features
- BUILT GREEN® certified home - single family new homes certified BUILT GREEN® Gold or Platinum are eligible for a partial mortgage loan insurance premium refund of 25%
- ENERGY STAR-rated appliances installed
- Main floor and all above walls insulated with R20 insulation
- Basements are insulated with R12 at a minimum
- Dual pane Low-E windows are installed
- High-efficiency furnace and tankless water heater installed with an ecobee™ Smart Thermostat Premium
- Heat recovery ventilator (HRV) to refresh airflow efficiently
- Water-efficient low flush toilets
- Solar panel rough-in
- Blower door test conducted to evaluate air flow
- Paints, finishes and materials are low VOC and low-formaldehyde
- All hot water lines are insulated
- All attic hatches are insulated and weather-stripped
- Lower mortgage payments with the RBC® Green Home Mortgage program
Community contact
Amber Amritwar
780-977-2739
Contact Us



