

Nest
Vita Crystallina
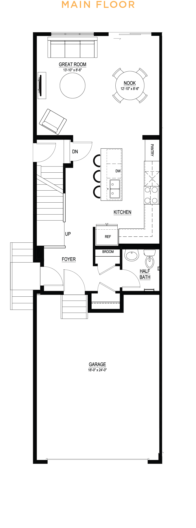
Meet the Nest, a smartly designed quick possession duplex in Vita Crystallina that offers comfort, efficiency, and modern style. With 1,576 sq. ft. of living space and three bedrooms, this home is ideal for growing families or first-time buyers looking for thoughtful design at every turn. The main floor features an upgraded kitchen with 42” upper cabinets, crown moulding, and an extended island, paired with a clean, contemporary interior palette. Pendant lighting over the island and a cozy nook create a warm, welcoming feel. As a BUILT GREEN® certified home, the Nest includes luxury vinyl plank flooring, stainless steel appliances, and energy-efficient features throughout. An exterior side entry adds future basement development potential, making this move-in-ready home as practical as it is stylish in northwest Edmonton.
*Quick possession completion dates are subject to change without notice.
Standard Features
- 9’ main floor ceiling
- All finished ceilings are knockdown
- Thermally-fused laminate (TFL) cabinets throughout
- Luxury vinyl plank (LVP) flooring and carpet throughout
- Modern appliance package
- Water line added to refrigerator
- 1¼” quartz countertops in kitchen, main bath and ensuite
- Up to 40” full width mirrors over every vanity
- One-piece fibreglass tub-shower with ceramic tile installed
- Wifi video doorbell to front door
- Low voltage package
- Fibreglass paint-grade exterior doors
- Delta wrap to basement exterior concrete walls
- Broom-finished concrete driveway
- 3-piece basement bath rough-in
- Full front and rear landscaping
- See Area Manager for full list of standard specifications
Additional Features
- Level 1 kitchen upgrade complete with crown moulding, island extension, 42” upper cabinets, and one pots and pans drawer
- Level 1 pendant to kitchen island
- Small chandelier to nook
- Exterior side entry to basement
Built Green Features
- BUILT GREEN® certified home - single family new homes certified BUILT GREEN® Gold or Platinum are eligible for a partial mortgage loan insurance premium refund of 25%
- ENERGY STAR-rated appliances installed
- Main floor and all above walls insulated with R20 insulation
- Basements are insulated with R12 at a minimum
- Dual pane Low-E windows are installed
- High-efficiency furnace and tankless water heater installed with an ecobee™ Smart Thermostat Premium
- Heat recovery ventilator (HRV) to refresh airflow efficiently
- Water-efficient low flush toilets
- Solar panel rough-in
- Blower door test conducted to evaluate air flow
- Paints, finishes and materials are low VOC and low-formaldehyde
- All hot water lines are insulated
- All attic hatches are insulated and weather-stripped
- Lower mortgage payments with the RBC® Green Home Mortgage program
Community contact



