

Cohen
Seton Ridge
1736
SQ FT |
3
Bed |
2.5
Bath
$589,900
Incl. home, lot & GST
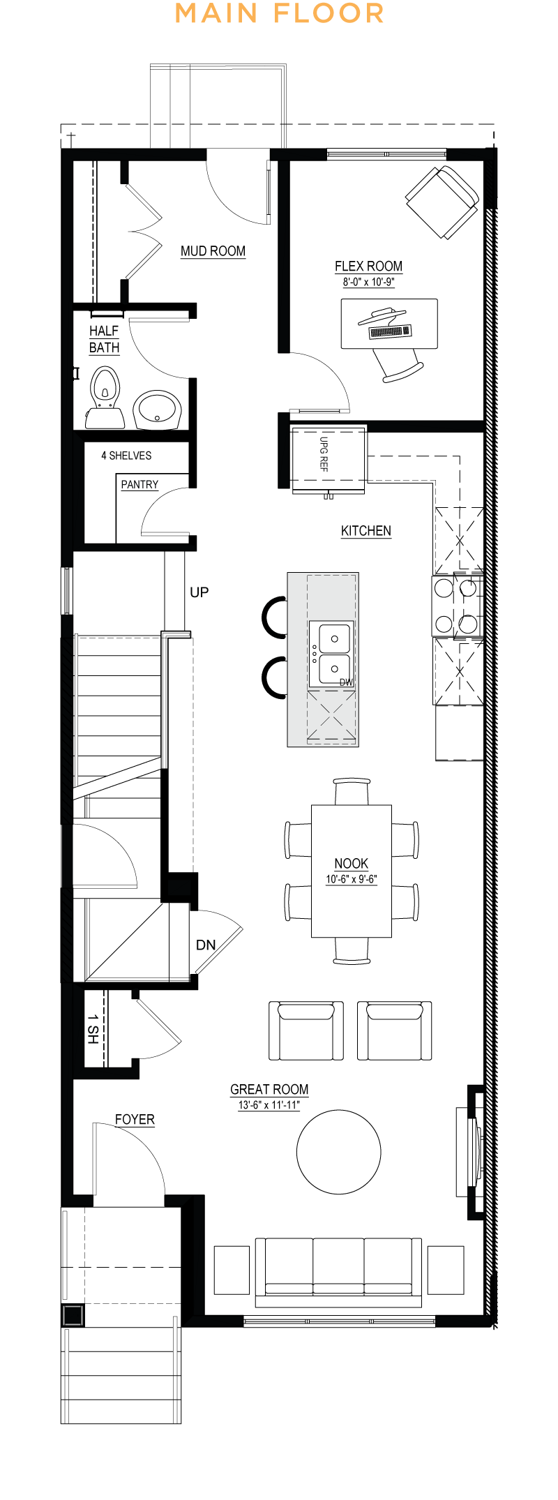
The Cohen features an open‑concept main floor with a stylish Level 2 kitchen, Level 2 fridge, and Level 3 gas range, complemented by a full‑height electric fireplace and additional potlights throughout the kitchen and great room. A versatile flex room with French doors and black iron spindled railing add modern appeal. Upstairs, a vaulted‑ceiling bonus room separates the primary suite—complete with dual sinks, a bank of drawers, and an upgraded shower—from two secondary bedrooms, alongside a full bathroom and laundry room. The home also includes basement suite rough‑in with exterior side entry, plus a gas line to the BBQ and a rear pressure‑treated landing for added convenience.
Standard Features
- 9’ main floor ceilings
- All finished ceilings are knockdown
- Thermally-fused laminate (TFL) cabinets throughout
- Luxury vinyl plank (LVP) flooring and carpet throughout
- Modern appliance package added
- Water line added to refrigerator
- 1 ¼” granite or quartz countertops in kitchen, ensuite and all baths
- Up to 40” full width mirrors over every vanity
- One-piece fibreglass tub-shower with ceramic tile installed
- Soft-close cabinet doors and drawers
- Smart home essentials package including Ring Video Doorbell, all-in-one thermostat, additional USB/USB-C ports and CAT6 locations
- Fibreglass paint-grade exterior doors
- Foundation wrap to basement exterior concrete wall
- Broom-finished 42” front walkway
- 3-piece basement bath rough-in
- See Area Manager for full list of standard specifications
Additional Features
- Full-height electric fireplace
- Level 2 fridge
- Level 3 gas range
- French door to flex room
- Black iron spindled railing
- Upgrade tubshower to shower in ensuite
- Dual sinks to ensuite
- Bank of three drawers to ensuite
- Vaulted bonus room ceiling
- Additional potlights to kitchen, great room & bonus room
- Basement suite rough-in
- Exterior side entry to basement
- Gasline to BBQ
- Rear pressure treated landing
Built Green Features
- Homes are built as being BUILT GREEN® certified
- ENERGY STAR-rated appliances installed
- Main floor and all above walls insulated with R20 insulation
- Basements are insulated with R12 at a minimum
- Dual pane Low-E windows are installed
- High-efficiency furnace and tankless water heater installed with smart thermostat
- Heat recovery ventilator (HRV) to refresh airflow efficiently
- Water-efficient low flush toilets
- Solar panel rough-in
- Blower door test conducted to evaluate air flow
- Paints, finishes and materials are low VOC and low-formaldehyde
Community contact
MON - THURS
-
2-8 PM
FRI
-
CLOSED
SAT - SUN
-
12-5 PM
HOLIDAYS
-
12-5 PM
X
This floorplan represents one version of this home and measurements are approximate. The square footage, measurements and layout may vary back on the elevation and/or lot. All elevations shown are artist’s concept only and will vary by community. The builder reserves the right to make modifications or substitutions should they be necessary. All plans, options, dimensions, specifications, materials and drawings are subject to change without notice. E.&O.E



