

Cohen
Savanna
1749
SQ FT |
4
Bed |
3
Bath
$594,900
Incl. home, lot & GST
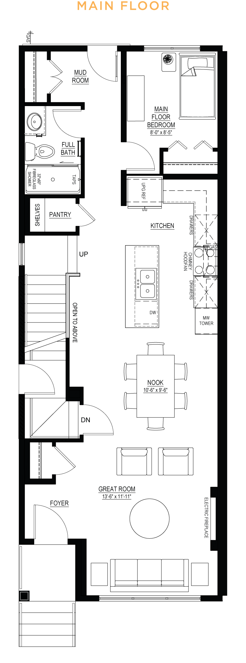
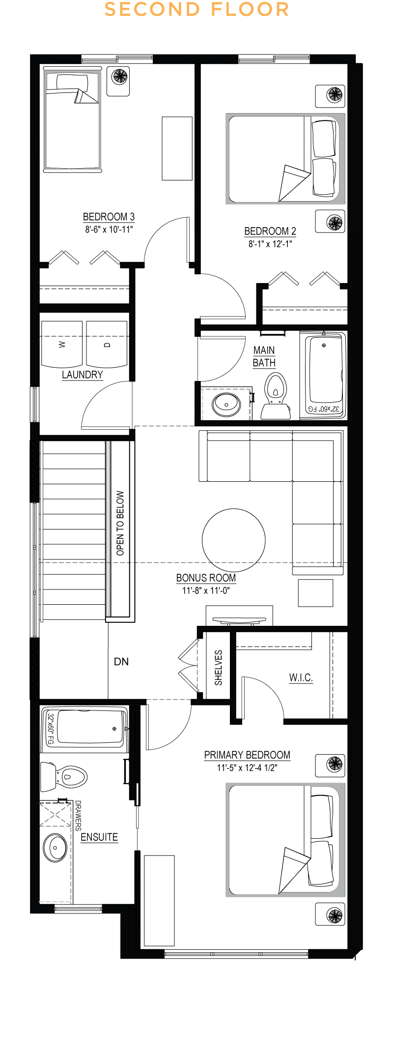
This Cohen features a beautiful, open-concept main floor, with a large kitchen with a gas range, great room with a full-height electric fireplace, and added potlights throughout the kitchen and great room for a bright and welcoming atmosphere. At the rear of the main floor is a bedroom and a full bath, to expand the home's versatility. Upstairs along the wood-spindled, is a bonus room with a vaulted-ceiling that offers a thoughtful separation between the primary suite—complete with an ensuite and walk-in closet. And then there are the two additional bedrooms, as well as laundry room with a standard washer and dryer. This home also includes an exterior side entry to the basement, as well as exterior gasline to the BBQ.
Standard Features
- 9’ main floor ceilings
- All finished ceilings are knockdown
- Thermally-fused laminate (TFL) cabinets throughout
- Luxury vinyl plank (LVP) flooring and carpet throughout
- Modern appliance package added
- Water line added to refrigerator
- 1 ¼” granite or quartz countertops in kitchen, ensuite and all baths
- Up to 40” full width mirrors over every vanity
- One-piece fibreglass tub-shower with ceramic tile installed
- Soft-close cabinet doors and drawers
- Smart home essentials package including Ring Video Doorbell, all-in-one thermostat, additional USB/USB-C ports and CAT6 locations
- Fibreglass paint-grade exterior doors
- Foundation wrap to basement exterior concrete wall
- Broom-finished 42” front walkway
- 3-piece basement bath rough-in
- See Area Manager for full list of standard specifications
Additional Features
- Main floor bedroom
- Full bath on main floor
- Full-height electric fireplace
- Level 2 fridge
- Level 3 gas range
- Bank of three drawers to ensuite
- Upgrade tubshower to shower in main bath
- Wood spindled railing
- Additional potlights to kitchen, great room & bonus room
- Vaulted bonus room ceiling
- 8’9” basement ceiling height
- Exterior side entry to basement
- Gasline to BBQ
Built Green Features
- Homes are built as being BUILT GREEN® certified
- ENERGY STAR-rated appliances installed
- Main floor and all above walls insulated with R20 insulation
- Basements are insulated with R12 at a minimum
- Dual pane Low-E windows are installed
- High-efficiency furnace and tankless water heater installed with smart thermostat
- Heat recovery ventilator (HRV) to refresh airflow efficiently
- Water-efficient low flush toilets
- Solar panel rough-in
- Blower door test conducted to evaluate air flow
- Paints, finishes and materials are low VOC and low-formaldehyde
Community contact
MON - THURS
-
2-8 PM
FRI
-
CLOSED
SAT - SUN
-
12-5 PM
HOLIDAYS
-
12-5 PM
X
Cohen is also available in
Carrington Cobblestone Creek Lewisburg Livingston Savanna Seton Ridge Silver Spruce
This floorplan represents one version of this home and measurements are approximate. The square footage, measurements and layout may vary back on the elevation and/or lot. All elevations shown are artist’s concept only and will vary by community. The builder reserves the right to make modifications or substitutions should they be necessary. All plans, options, dimensions, specifications, materials and drawings are subject to change without notice. E.&O.E



