

Cohen
Seton Ridge
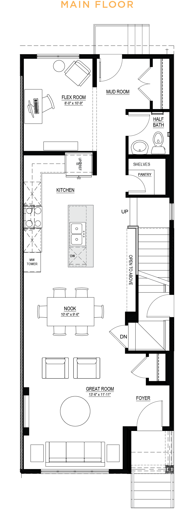
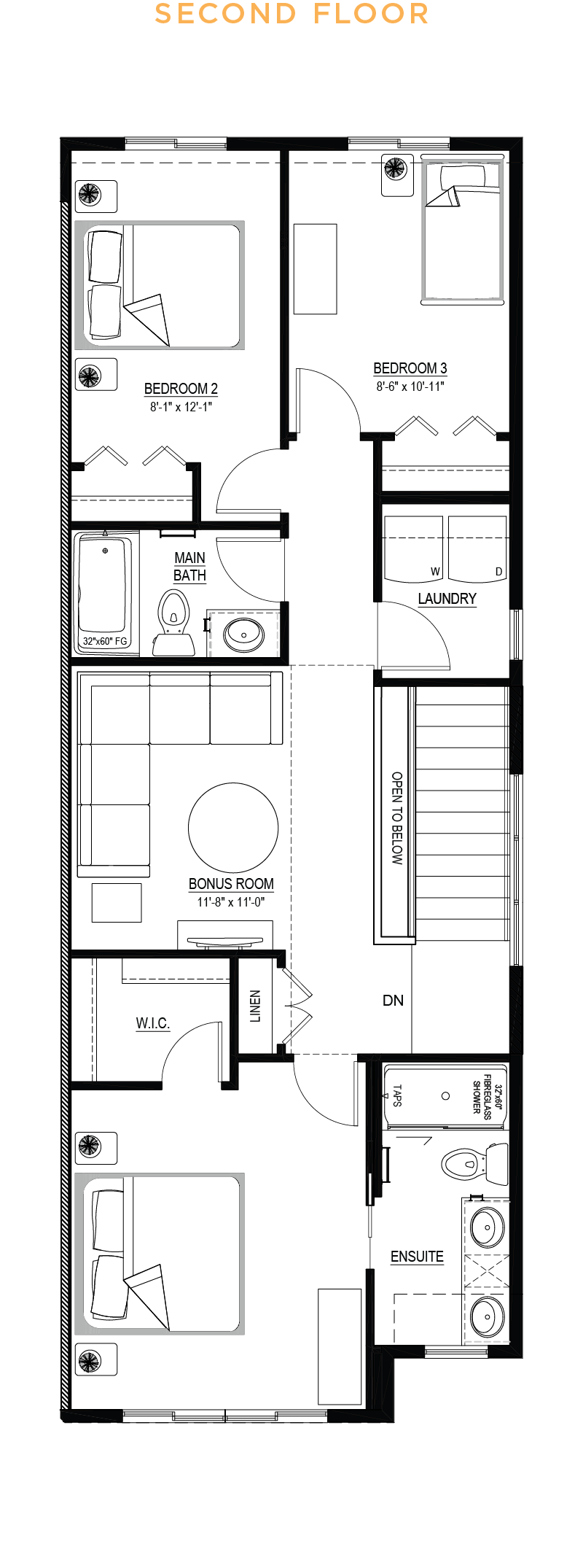
The Cohen features an open-concept main floor anchored by a Level 2 kitchen and fridge, enhanced with additional potlights and an inviting full‑height electric fireplace in the great room. Upstairs, the vaulted bonus room separates the primary suite—which includes dual sinks, a bank of drawers, and an upgraded shower—from the two additional bedrooms. Stylish touches like black metal spindled railing and a standard washer and dryer add both function and modern appeal. This home also offers gas lines to both the BBQ and range, plus a rear pressure‑treated landing for outdoor convenience. Completing the layout is a fully developed two‑bedroom, two‑bathroom basement suite with a private exterior side entry—ideal for added income or extended family living.
Standard Features
- 9’ main floor ceilings
- All finished ceilings are knockdown
- Thermally-fused laminate (TFL) cabinets throughout
- Luxury vinyl plank (LVP) flooring and carpet throughout
- Modern appliance package added
- Water line added to refrigerator
- 1 ¼” granite or quartz countertops in kitchen, ensuite and all baths
- Up to 40” full width mirrors over every vanity
- One-piece fibreglass tub-shower with ceramic tile installed
- Soft-close cabinet doors and drawers
- Smart home essentials package including Ring Video Doorbell, all-in-one thermostat, additional USB/USB-C ports and CAT6 locations
- Fibreglass paint-grade exterior doors
- Foundation wrap to basement exterior concrete wall
- Broom-finished 42” front walkway
- 3-piece basement bath rough-in
- See Area Manager for full list of standard specifications
Additional Features
- Level 2 kitchen
- Level 2 fridge
- Full-height electric fireplace
- Standard washer & dryer
- Additional potlights to kitchen, great room & bonus room
- Black metal spindled railing
- Bank of three drawers & dual sinks to ensuite
- Upgrade tubshower to shower in ensuite
- Vaulted bonus room ceiling
- Developed basement suite (two bedroom, two bathroom)
- Exterior side entry to basement
- Gasline to BBQ
- Gasline to range
- Rear pressure treated landing
Built Green Features
- Homes are built as being BUILT GREEN® certified
- ENERGY STAR-rated appliances installed
- Main floor and all above walls insulated with R20 insulation
- Basements are insulated with R12 at a minimum
- Dual pane Low-E windows are installed
- High-efficiency furnace and tankless water heater installed with smart thermostat
- Heat recovery ventilator (HRV) to refresh airflow efficiently
- Water-efficient low flush toilets
- Solar panel rough-in
- Blower door test conducted to evaluate air flow
- Paints, finishes and materials are low VOC and low-formaldehyde
Community contact




