

Lotus
Livingston
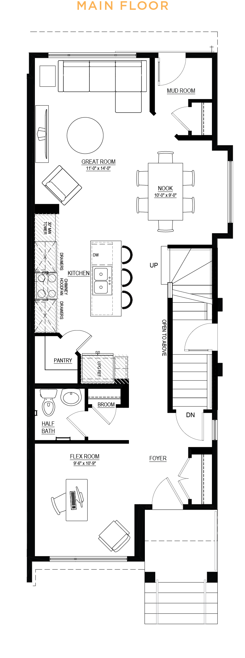
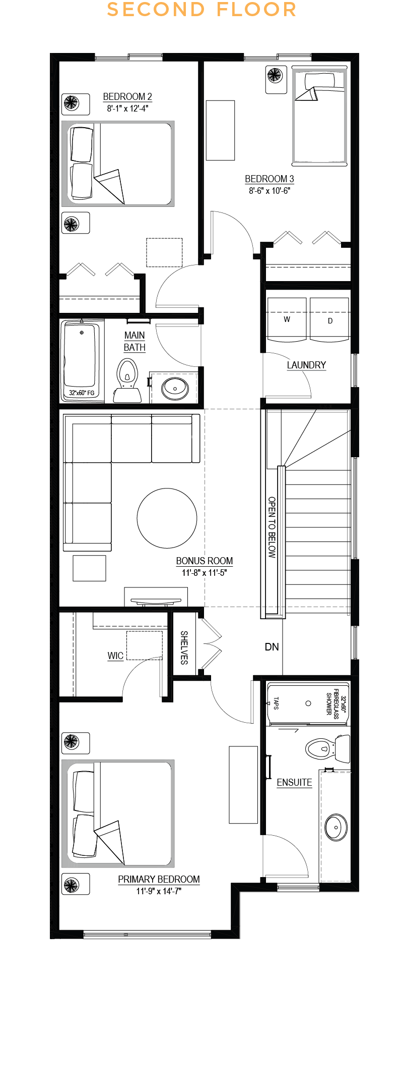
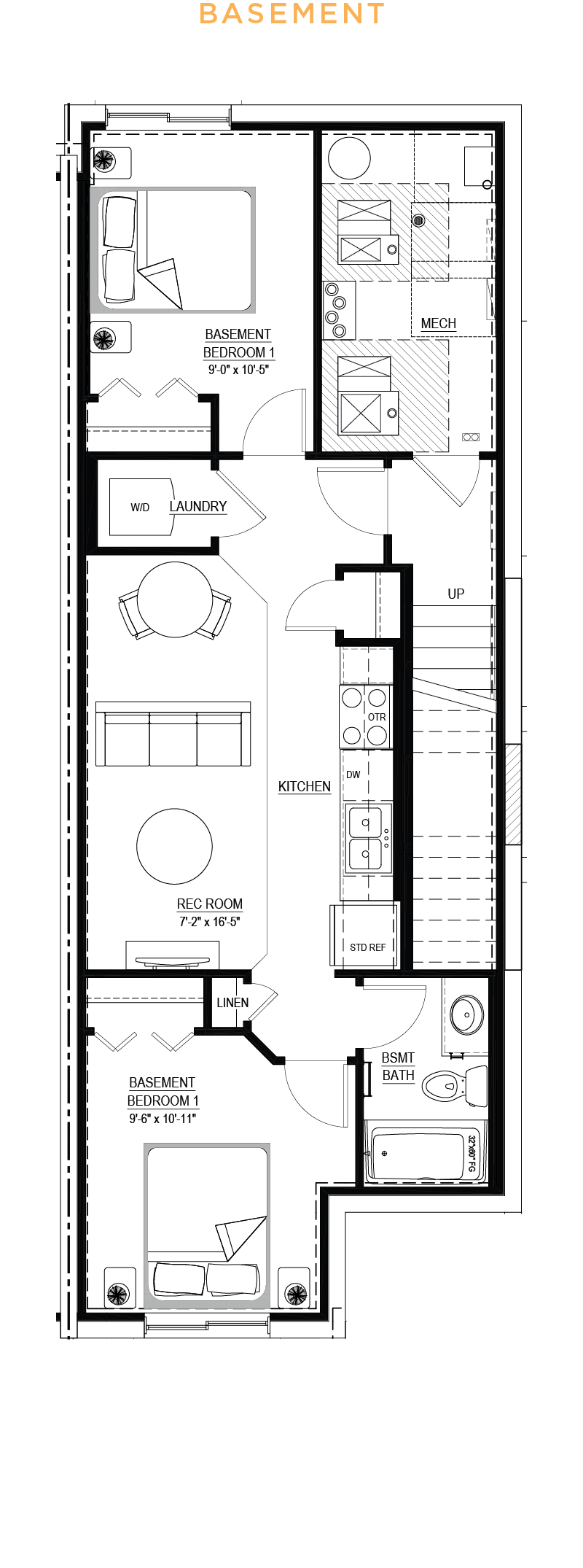
The Lotus offers a bright, functional layout with a main floor bedroom and a full upgraded shower bath, perfect for guests or multi‑generational living. The Level 2 kitchen features a Level 2 fridge, an anthracite silgranit undermount sink, black farmhouse lighting, additional pot lights, and a stylish black plumbing package, all flowing seamlessly into the dining nook and great room. A black metal spindle railing leads you upstairs to a vaulted bonus room, convenient laundry with a countertop above the washer/dryer, and two additional bedrooms. The primary suite includes a fully upgraded ensuite with a shower in place of the tub/shower, black trim shower door, and full‑height tiled walls. A fully developed legal two‑bedroom basement suite with exterior side entry, complete with its own washer and dryer, that adds incredible income potential and long‑term flexibility. Outside, you’ll enjoy a 12’ x 21’ detached garage and a gasline to your BBQ for effortless outdoor living.
Standard Features
- 9’ main floor ceilings
- All finished ceilings are knockdown
- Thermally-fused laminate (TFL) cabinets throughout
- Luxury vinyl plank (LVP) flooring and carpet throughout
- Modern appliance package added
- Water line added to refrigerator
- 1 ¼” granite or quartz countertops in kitchen, ensuite and all baths
- Up to 40” full width mirrors over every vanity
- One-piece fibreglass tub-shower with ceramic tile installed
- Soft-close cabinet doors and drawers
- Smart home essentials package including Ring Video Doorbell, all-in-one thermostat, additional USB/USB-C ports and CAT6 locations
- Fibreglass paint-grade exterior doors
- Foundation wrap to basement exterior concrete wall
- Broom-finished 42” front walkway
- 3-piece basement bath rough-in
- See Area Manager for full list of standard specifications
Additional Features
- Level 2 fridge to kitchen
- Anthracite silgranit undermount sink to kitchen
- Black farmhouse lighting package to main and second floor
- Standard black plumbing package
- Matte black door hardware to main and second floor
- Black metal spindled railing
- Countertop above laundry with washer/dryer
- Upgrade tubshower to shower in ensuite
- Black shower trim door to ensuite
- Full height tile above shower to ensuite
- Vaulted bonus room ceiling
- Additional pot lights to kitchen, great room & bonus room
- Developed legal basement suite (two bedroom)
- Exterior side entry to basement
- Standard washer & dryer to basement suite
- Gasline to BBQ
- 12’ x 21’ detached garage
Built Green Features
- Homes are built as being BUILT GREEN® certified
- ENERGY STAR-rated appliances installed
- Main floor and all above walls insulated with R20 insulation
- Basements are insulated with R12 at a minimum
- Dual pane Low-E windows are installed
- High-efficiency furnace and tankless water heater installed with smart thermostat
- Heat recovery ventilator (HRV) to refresh airflow efficiently
- Water-efficient low flush toilets
- Solar panel rough-in
- Blower door test conducted to evaluate air flow
- Paints, finishes and materials are low VOC and low-formaldehyde
Community contact




