Quick Possession - Available soon!

Haven

Vita Crystallina

1417 SQ FT | 3 Bed | 2.5 Bath
Price TBD
Incl. home, lot & GST

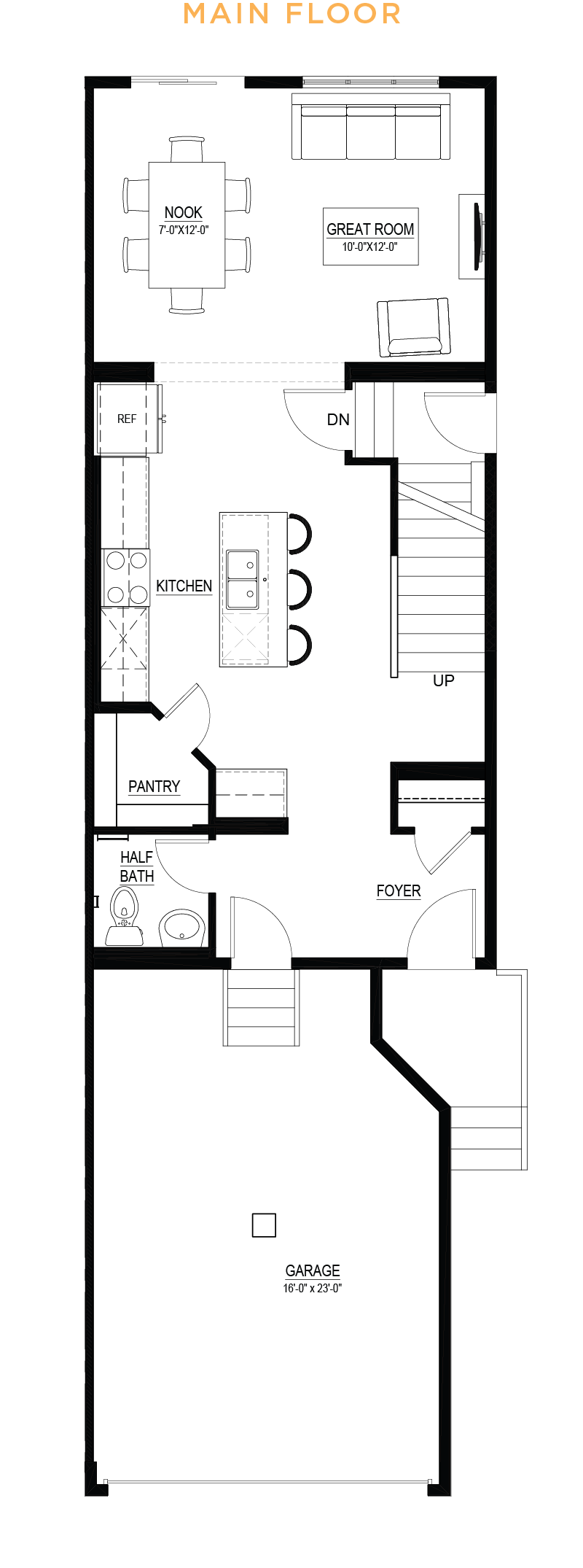
Meet the Haven, a thoughtfully designed quick possession duplex in Vita Crystallina that offers efficient living with modern style. With 1,416 sq. ft. of living space and three bedrooms, this home is an excellent option for first-time buyers or those looking to downsize without compromise. The main floor features an upgraded kitchen complete with 42” upper cabinets, crown moulding, and an extended island, all paired with a clean, contemporary interior palette. Pendant lighting above the island and a charming nook add warmth and everyday functionality. Upstairs, the well-planned layout includes three comfortable bedrooms and a full bath. An exterior side entry provides added flexibility for future basement development. Stylish, practical, and move-in ready, the Haven is a welcoming place to call home in northwest Edmonton.

*Quick possession completion dates are subject to change without notice.

Standard Features

  • 9’ main floor ceiling
  • All finished ceilings are knockdown
  • Thermally-fused laminate (TFL) cabinets throughout
  • Luxury vinyl plank (LVP) flooring and carpet throughout
  • Modern appliance package
  • Water line added to refrigerator
  • 1¼” quartz countertops in kitchen, main bath and ensuite
  • Up to 40” full width mirrors over every vanity
  • One-piece fibreglass tub-shower with ceramic tile installed
  • Wifi video doorbell to front door
  • Low voltage package
  • Fibreglass paint-grade exterior doors
  • Delta wrap to basement exterior concrete walls
  • Broom-finished concrete driveway
  • 3-piece basement bath rough-in
  • Full front and rear landscaping
  • See Area Manager for full list of standard specifications

Additional Features

  • Level 1 kitchen upgrade complete with crown moulding, island extension, 42” upper cabinets, and one pots and pans drawer
  • Level 1 pendant to kitchen island
  • Small chandelier to nook
  • Exterior side entry to basement

Built Green Features

  • BUILT GREEN® certified home - single family new homes certified BUILT GREEN® Gold or Platinum are eligible for a partial mortgage loan insurance premium refund of 25%
  • ENERGY STAR-rated appliances installed
  • Main floor and all above walls insulated with R20 insulation
  • Basements are insulated with R12 at a minimum
  • Dual pane Low-E windows are installed
  • High-efficiency furnace and tankless water heater installed with an ecobee™ Smart Thermostat Premium
  • Heat recovery ventilator (HRV) to refresh airflow efficiently
  • Water-efficient low flush toilets
  • Solar panel rough-in
  • Blower door test conducted to evaluate air flow
  • Paints, finishes and materials are low VOC and low-formaldehyde
  • All hot water lines are insulated
  • All attic hatches are insulated and weather-stripped
  • Lower mortgage payments with the RBC® Green Home Mortgage program

Community contact

Khush Sandhu

Khush Sandhu

Area manager, Front Garage, Duplex
By Appointment Only
780-718-4869
Contact Us
MON - THURS - BY APPT. ONLY
FRI - BY APPT. ONLY
SAT - SUN - BY APPT. ONLY
HOLIDAYS - BY APPT. ONLY
X
This floorplan represents one version of this home and measurements are approximate. The square footage, measurements and layout may vary back on the elevation and/or lot. All elevations shown are artist’s concept only and will vary by community. The builder reserves the right to make modifications or substitutions should they be necessary. All plans, options, dimensions, specifications, materials and drawings are subject to change without notice. E.&O.E