

Collingwood
Princeton - 138 Prince Crescent NE
Price includes home, lot & GST.
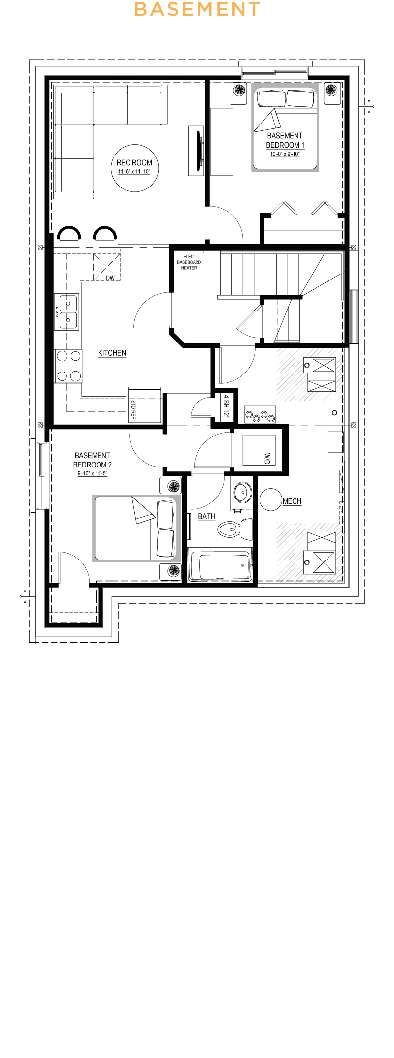
With the Collingwood, entertaining feels effortless and beautifully refined. From the moment you enter, a main floor bedroom and full bathroom offer the perfect setup for guests or multi‑generational living. Designed with purpose and polish, the spacious main floor centers around a stunning kitchen complemented by a dedicated spice kitchen equipped with a Level 3 gas range. Additional potlights brighten the kitchen and great room, while a full‑height electric fireplace adds a touch of modern warmth. The sunlit dining nook creates an inviting backdrop for everyday meals and special gatherings alike. Upstairs, a sleek black iron spindled railing leads you to a dramatic vaulted bonus room, thoughtfully positioned to separate the private primary suite from the additional bedrooms. The basement comes fully developed as a legal two‑bedroom suite with its own exterior side entry and standard washer and dryer—offering exceptional flexibility for future use. And with a gas line to the BBQ, outdoor cooking and entertaining are always ready when you are.
Standard Features
- 9’ main floor ceilings
- All finished ceilings are knockdown
- Thermally-fused laminate (TFL) cabinets throughout
- Luxury vinyl plank (LVP) flooring and carpet throughout
- Modern appliance package added
- Water line added to refrigerator
- 1 ¼” granite or quartz countertops in kitchen, ensuite and all baths
- Up to 40” full width mirrors over every vanity
- One-piece fibreglass tub-shower with ceramic tile installed
- Soft-close cabinet doors and drawers
- Smart home essentials package including Ring Video Doorbell, all-in-one thermostat, additional USB/USB-C ports and CAT6 locations
- Fibreglass paint-grade exterior doors
- Foundation wrap to basement exterior concrete wall
- Broom-finished 42” front walkway
- 3-piece basement bath rough-in
- See Area Manager for full list of standard specifications
Additional Features
- Main floor bedroom
- Full bath on main floor
- Spice kitchen
- Level 3 gas range to spice kitchen
- Full-height electric fireplace
- Black iron spindled railing
- Additional potlights to kitchen, great room & bonus room
- Vaulted bonus room ceiling
- Developed legal basement suite (two bedroom, one bath)
- Exterior side entry to basement
- Standard washer & dryer to basement
- Gasline to BBQ
Built Green Features
- Homes are built as being BUILT GREEN® certified
- ENERGY STAR-rated appliances installed
- Main floor and all above walls insulated with R20 insulation
- Basements are insulated with R12 at a minimum
- Dual pane Low-E windows are installed
- High-efficiency furnace and tankless water heater installed with smart thermostat
- Heat recovery ventilator (HRV) to refresh airflow efficiently
- Water-efficient low flush toilets
- Solar panel rough-in
- Blower door test conducted to evaluate air flow
- Paints, finishes and materials are low VOC and low-formaldehyde
Community contact




