

Creston
Savanna
1780
SQ FT |
3
Bed |
2.5
Bath
FROM THE
MID $600s
Pricing includes home, lot and GST.
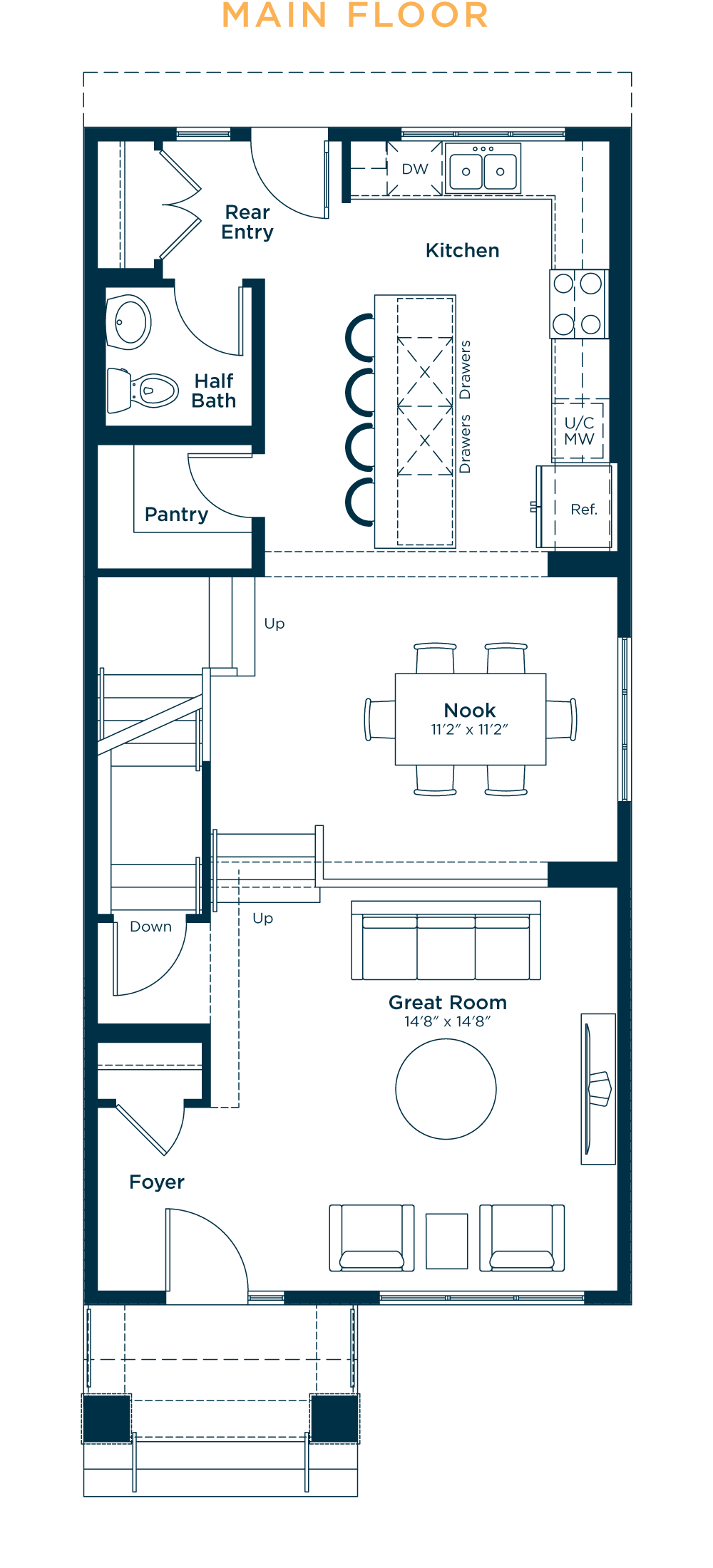
Step right into our lavish split level model, the Creston. Designed with open concept living in mind, the main floor boasts a grand great room with plenty of space to entertain and gather. Continue through your cozy dining nook to reach the thoughtfully-crafted kitchen with the addition of an extended 4-seater island with storage below—perfect for hosting friends and family! Upstairs, an impressive primary suite awaits and a bonus room for everyone to enjoy. An optional developed basement can allow for two additional bedrooms along with a large rec room, perfect for family game night.
Standard Features
- 9’ main floor ceilings
- All finished ceilings are knockdown
- Thermally-fused laminate (TFL) cabinets throughout
- Luxury vinyl plank (LVP) flooring and carpet throughout
- Modern appliance package added including refrigerator, dishwasher, microwave, range oven and chimney hoodfan
- Water line added to refrigerator
- 1 ¼” granite or quartz countertops in kitchen, ensuite and all baths
- Up to 40” full width mirrors over every vanity
- One-piece fibreglass tub-shower with ceramic tile installed
- Soft-close cabinet doors and drawers
- Two sets of pots and pans drawers in kitchen
- Smart home essentials package including Ring Video Doorbell, all-in-one thermostat, wifi garage door opener, additional USB/USB-C ports and CAT6 locations
- Fibreglass paint-grade exterior door
- Foundation wrap to basement exterior concrete walls
- Broom-finished concrete driveway and 42” front walkway
- 3-piece basement bath rough-in
- See Area Manager for full list of standard specifications
Built Green Features
- Homes are built as being BUILT GREEN® certified
- ENERGY STAR-rated appliances installed
- Main floor and all above walls insulated with R20 insulation
- Basements are insulated with R12 at a minimum
- Triple pane Low-E windows are installed
- High-efficiency furnace and tankless water heater installed with smart thermostat
- Heat recovery ventilator (HRV) to refresh airflow efficiently
- Water-efficient low flush toilets
- Solar panel rough-in
- Blower door test conducted to evaluate air flow
- Paints, finishes and materials are low VOC and low-formaldehyde
Community contact
MON - THURS
-
2-8 PM
FRI
-
CLOSED
SAT - SUN
-
12-5 PM
HOLIDAYS
-
12-5 PM
X
Creston is also available in
Chinook Gate Cobblestone Creek Homestead Livingston Mahogany Rangeview Springs
This floorplan represents one version of this home and measurements are approximate. The square footage, measurements and layout may vary back on the elevation and/or lot. All elevations shown are artist’s concept only and will vary by community. The builder reserves the right to make modifications or substitutions should they be necessary. All plans, options, dimensions, specifications, materials and drawings are subject to change without notice. E.&O.E























