

Camden
Rangeview Springs
Pricing includes home, lot and GST.
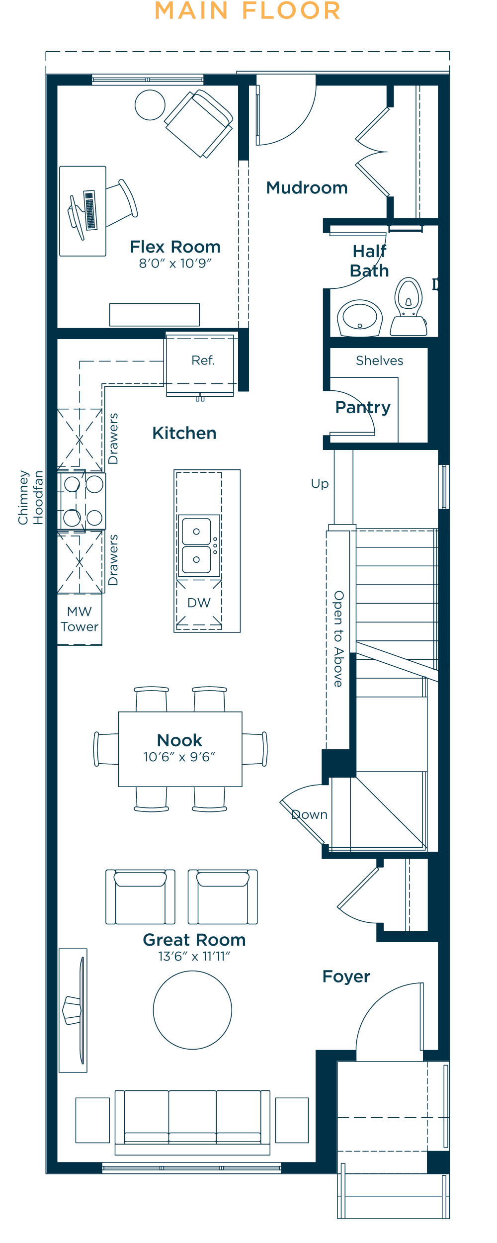
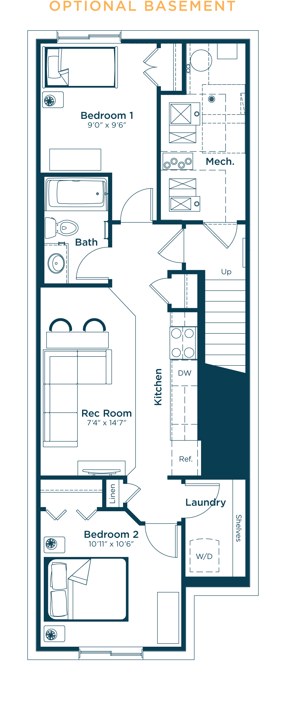
Welcome to the Camden, a spacious laned home thoughtfully designed for both entertaining and everyday living. At the front of the home, the bright great room flows seamlessly into the dining nook and a stylish kitchen with a large island and plenty of counter space, perfect for hosting family and friends. At the rear, you’ll find a versatile flex room and a convenient mudroom to help keep everything organized. Upstairs, a cozy bonus room, ideal for movie nights, creates separation between the private primary suite and the additional two bedrooms. The primary retreat features a walk-in closet and a luxurious ensuite, while the secondary bedrooms share a full bath and enjoy easy access to the upstairs laundry. For even more living space, the basement can be developed to include two additional bedrooms, a full bathroom, a kitchen, and a rec room, perfect for multi-generational living or rental income opportunities.
Standard Features
- 9’ main floor ceilings
- All finished ceilings are knockdown
- Thermally-fused laminate (TFL) cabinets throughout
- Luxury vinyl plank (LVP) flooring and carpet throughout
- Modern appliance package added including refrigerator, dishwasher, microwave, range oven and chimney hoodfan
- Water line added to refrigerator
- 1 ¼” granite or quartz countertops in kitchen, ensuite and all baths
- Up to 40” full width mirrors over every vanity
- One-piece fibreglass tub-shower with ceramic tile installed
- Soft-close cabinet doors and drawers
- Two sets of pots and pans drawers in kitchen
- Smart home essentials package including Ring Video Doorbell, all-in-one thermostat, wifi garage door opener, additional USB/USB-C ports and CAT6 locations
- Fibreglass paint-grade exterior door
- Foundation wrap to basement exterior concrete walls
- Broom-finished concrete driveway and 42” front walkway
- 3-piece basement bath rough-in
- See Area Manager for full list of standard specifications
Built Green Features
- Homes are built as being BUILT GREEN® certified
- ENERGY STAR-rated appliances installed
- Main floor and all above walls insulated with R20 insulation
- Basements are insulated with R12 at a minimum
- Triple pane Low-E windows are installed
- High-efficiency furnace and tankless water heater installed with smart thermostat
- Heat recovery ventilator (HRV) to refresh airflow efficiently
- Water-efficient low flush toilets
- Solar panel rough-in
- Blower door test conducted to evaluate air flow
- Paints, finishes and materials are low VOC and low-formaldehyde
Community contact








