

Alder
Airdrie
1781
SQ FT |
3
Bed |
2.5
Bath
FROM THE
Price includes home, lot & GST.
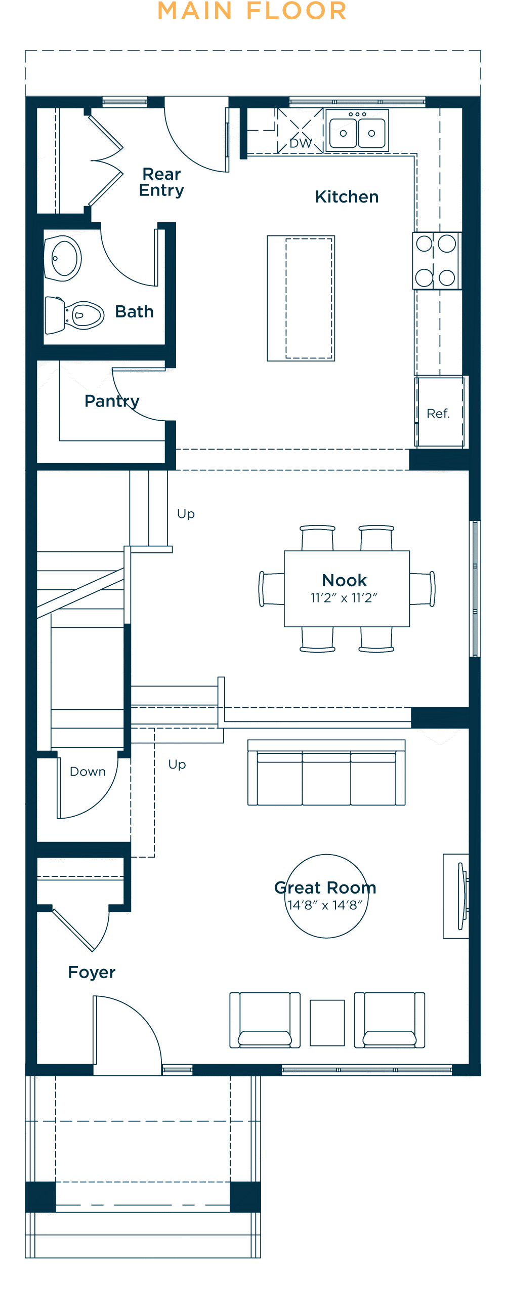
Step right into our lavish split level model, the Alder. Designed with open concept living in mind, the main floor boasts a grand great room with plenty of space to entertain and gather. Continue through your cozy dining nook to reach the thoughtfully crafted island kitchen, perfect for hosting friends and family! Upstairs, an impressive primary suite awaits and a bonus room for everyone to enjoy. An optional developed basement or basement suite development can allow for a bedroom along with a large rec room, perfect for family game night.
Standard Features
- 9’ main floor ceiling
- All finished ceilings are knockdown
- Thermally-fused laminate (TFL) cabinets throughout
- Luxury vinyl plank (LVP) flooring and carpet throughout
- Modern appliance package
- Water line added to refrigerator
- 1¼” quartz countertops in kitchen, main bath and ensuite
- Up to 40” full width mirrors over every vanity
- One-piece fibreglass tub-shower with ceramic tile installed
- Wifi video doorbell to front door
- Low voltage package
- Fibreglass paint-grade exterior doors
- Delta wrap to basement exterior concrete walls
- Broom-finished concrete driveway
- 3-piece basement bath rough-in
- Full front and rear landscaping
- See Area Manager for full list of standard specifications
Built Green Features
- BUILT GREEN® certified home - single family new homes certified BUILT GREEN® Gold or Platinum are eligible for a partial mortgage loan insurance premium refund of 25%
- ENERGY STAR-rated appliances installed
- Main floor and all above walls insulated with R20 insulation
- Basements are insulated with R12 at a minimum
- Dual pane Low-E windows are installed
- High-efficiency furnace and tankless water heater installed with an ecobee™ Smart Thermostat Premium
- Heat recovery ventilator (HRV) to refresh airflow efficiently
- Water-efficient low flush toilets
- Solar panel rough-in
- Blower door test conducted to evaluate air flow
- Paints, finishes and materials are low VOC and low-formaldehyde
- All hot water lines are insulated
- All attic hatches are insulated and weather-stripped
- Lower mortgage payments with the RBC® Green Home Mortgage program
This floorplan represents one version of this home and measurements are approximate. The square footage, measurements and layout may vary back on the elevation and/or lot. All elevations shown are artist’s concept only and will vary by community. The builder reserves the right to make modifications or substitutions should they be necessary. All plans, options, dimensions, specifications, materials and drawings are subject to change without notice. E.&O.E























