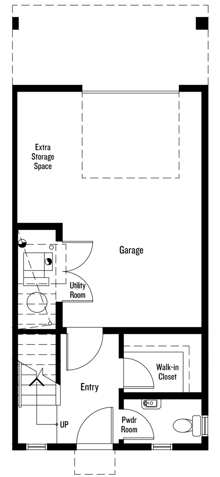
Plan T
SOLD OUT
1,148 SQ. FT.
3 Bedrooms
2.5 Baths
- Private front entrance
- Desirable corner units
- Galley-style kitchen with upper cabinets
- Single attached garage
- Full driveway
- Large garage storage bay
- Full-width balcony for outdoor entertaining
- Located across the street from key amenities
